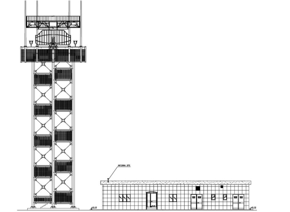
Ammodernamento dei sistemi Radar App di ENAV SPA sul territorio nazionale (LEONARDO Elettronics) – Lavori Site Preparation Aeroporto di Bari
DESCRIZIONE DELL'OPERA
COMMITTENTE: ENAV SPA
Gli interventi da realizzare consistono sinteticamente in:
1-Manutenzione dell’edificio Radar e realizzazione di sala controllo all’interno della sala apparati;
2-Ammodernamento impiantistico
3-Attività di manutenzione e revisione impiantistica della struttura in acciaio porta antenne (Traliccio Radar).
SERVIZIO SVOLTO
Progettazione definitiva – progettazione esecutiva e coordinamento per la sicurezza in fase di progettazione
