S.S. 407 – Lavori di ripristino strutturale e degli impianti della Galleria Carvotto – Fornice Dir. PZ al Km 28+104 danneggiati a seguito di incendio di un mezzo pesante
DESCRIZIONE DELL'OPERA
COMMITTENTE: ANAS SpA
L’intervento in questione si è reso necessario a causa di un incendio provocato da un mezzo pesante verificatosi nel tratto di galleria compreso tra il km. 28+340 ed il km 28+360 della S.S. 407 – Basentana nella direzione di Potenza.
Il tratto di galleria come sopra è rimasto esposto al calore delle fiamme dell’incendio dalle ore 16.45 (orario di arrivo del VVF competenti) fino alle ore 21.07 (termine operazioni di soccorso VVF).
LAVORI STRUTTURALI
- idrodemolizione per la rimozione del rivestimento di gunite (spessore medio cm 4) e l’asportazione corticale del sub strato di calcestruzzo (spessore medio di cm 2) mediante getto di acqua avente pressione variabile fino a 1500 atm;
- esecuzione di fori su struttura in calcestruzzo, del diametro da 18 mm a 26 mm e lunghezza da cm 10 a cm 40 per inghisaggio, con resina epossidica, di barre sagomate GFRP del phi 12 mm;
- idrolavaggio mediante getto di acqua avente pressione fino a 200 bar;
- f.p.o. di barre sagomate GFRP del phi 12 mm, per impiego non strutturale;
- f.p.o. di rete di armatura monolitica in vetroresina, di diametro 8 mm, maglia 150×150 mm
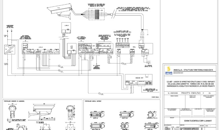
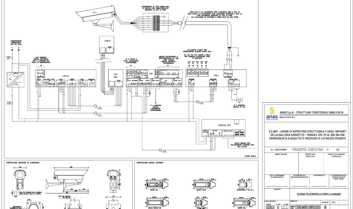
LAVORI IMPIANTISTICI
I lavori impiantistici hanno previsto la demolizione dei corpi illuminanti esistenti, del canale e dei cavi ivi compresa la fibra ottica; non sono stati rimossi gli SOS, le telecamere e la segnaletica luminosa esistente tranne quelli nei pressi della zona di incendio. È prevista la installazione di un nuovo impianto di illuminazione e la nuova fibra ottica monomodale che verrà posata interrata a partire dalla cabina e con gli stacchi nei pozzetti sotto i nuovi quadri di distribuzione interni alla galleria.
Il progetto ha previsto l’utilizzo di corpi illuminanti a LED aventi un grado di protezione almeno IP66, adatti ad ambienti aggressivi ovvero resistenti alla corrosione provocata dalla presenza di atmosfere acide, saline ed umide.
Per quanto riguarda gli impianti speciali, è stata prevista la sostituzione dei cartelli luminosi, delle telecamere e della stazione di emergenza (SOS) nelle immediate vicinanze dell’area di intervento.
In cabina è prevista la sostituzione degli UPS e degli apparati di videosorveglianza .
Tutti gli impianti nel fornice di interesse sono stati progettati in accordo alla nuova CEI 64-20.
SERVIZIO SVOLTO
Progettazione esecutiva e coordinamento per la sicurezza in fase di progettazione
